Fjellgata 6
4612 Kristiansand
Representativt lokale til 2-4 personer – God parkeringsdekning
Om eiendommen
Velkommen til Baneheia Park! Baneheia Park er et helt nytt kvartal i nordvest-hjørnet av Kvadraturen. I kvartalet finner du bl.a. det nye fylkeshuset til Agder Fylkeskommune.
Lokalet ligger i første byggetrinn som ble ferdigstilt i 2020. Andre leietakere i bygget er Advokatfirma Tofte Hald, BDO, Multiconsult og WSP. Eiendommen har kort avstand til bussmetro og jernbanestasjon og en svært effektiv og enkelt adkomst både med sykkel, bil og til fots. Det er 100 meter til Markensgate med alle sine fasiliteter. Baneheia er rett utenfor døra. Bygget er utstyrt med fellesfasiliteter som garderober med dusj, tørkerom og innendørs sykkelparkering. I kjelleren etableres det et stort parkeringshus og vi kan tilby god parkeringsdekning til leietakere.
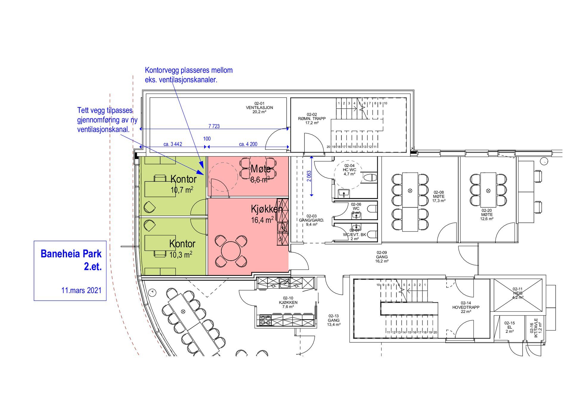
2. etasje
51 m²
Parkering
God parkeringsdekning
Oppført
2020
Overtakelse
Etter avtale
Om eiendommen
Ta en titt på Baneheia Park – det nyeste tilskuddet til Kvadraturens nordvestlige hjørne! Dette splitter nye området er hjem til Agder Fylkeskommunes flunkende fylkeshus, blant andre spennende fasiliteter.
Vårt lokale, en del av den første utbyggingsfasen som stolt ble fullført i 2020, deler adresse med kjente navn som Advokatfirma Tofte Hald, BDO, Multiconsult, og WSP. Med sin strategiske plassering, er eiendommen perfekt tilgjengelig med buss, tog, bil, sykkel eller til og med til fots, takket være sin korte avstand til både bussmetro, jernbanestasjonen og kun 100 meter fra det yrende livet i Markensgate og dens mange tilbud. Dessuten ligger naturskjønne Baneheia bokstavelig talt rett utenfor døren.
Inne i bygget finner du fellesarealer som garderober utstyrt med dusj, tørkerom og sykkelparkering innendørs for å gjøre hverdagen litt enklere.
Ned i kjelleren venter et romslig parkeringshus, hvor vi stolt kan tilby våre leietakere rikelig med parkeringsplasser. Velkommen til et kvartal designet for å imøtekomme alle dine behov!

TOR OLAV HOLEN
Eiendomsdirektør
Mobil: 45 51 73 10









